Stap binnen in dit lichte en ruime familiehuis, waar comfort en praktische indeling hand in hand gaan. Met vijf slaapkamers, twee badkamers, een zonnige tuin en twee balkons is dit de ideale woning voor een gezin dat rust zoekt, maar alle voorzieningen toch dichtbij wil hebben.

Turfschip 16 Amstelveen

1186 XL Amstelveen

Vraagprijs € 725.000 k.k.

Omschrijving

Stap binnen in dit lichte en ruime familiehuis, waar comfort en praktische indeling hand in hand gaan. Met vijf slaapkamers, twee badkamers, een zonnige tuin en twee balkons is dit de ideale woning voor een gezin dat rust zoekt, maar alle voorzieningen toch dichtbij wil hebben.

INDELING

 

Begane grond

Via de entree op het oosten bereikt u de hal die toegang geeft tot twee slaapkamers. Deze kamers zijn flexibel in te delen, bijvoorbeeld als werk- of logeerkamer. Verder vindt u hier een badkamer met toilet, douche en wastafel en een praktische ruimte voor de wasmachine.

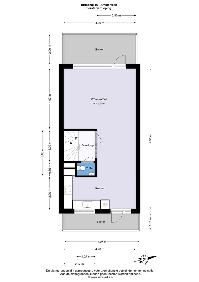
Eerste verdieping

De lichte woonkamer ligt centraal tussen de balkons aan de voor- en achterzijde. De open keuken vormt het hart van het huis, met volop ruimte voor een grote eettafel. Het balkon aan de achterzijde ligt op het westen, perfect voor de middag- en avondzon, terwijl het balkon aan de voorzijde juist de ochtendzon vangt.

Tweede verdieping

Deze etage verrast door de plafondhoogte van circa 3,30 meter. Hier bevinden zich drie slaapkamers, een tweede badkamer met ligbad, douche, wastafel en een separaat toilet. De royale hoogte en indeling geven deze verdieping een luchtige en luxe uitstraling.

BUITENRUIMTE

De zonnige achtertuin op het westen biedt volop gelegenheid om in de middag- en avondzon te genieten. Daarnaast zorgen de twee balkons aan de voor- en achterzijde voor extra buitenruimte op elk moment van de dag. De woning beschikt bovendien over een eigen oprit – handig indien u een elektrische auto heeft – en gratis parkeren kan voor de deur.

BIJZONDERHEDEN

– 5 slaapkamers en 2 badkamers
– Tuin op het westen en twee balkons
– Tweede verdieping met plafondhoogte van ca. 3,30 m

OMGEVING

De wijk Waardhuizen staat bekend om zijn rustige, groene en kindvriendelijke karakter. Achter de woning vindt u een basketbal- en voetbalveld, een speeltuin en een pierenbadje, zodat kinderen hier veilig en plezierig kunnen spelen. In de nabije omgeving is ruime keuze aan kwalitatief goed onderwijs: meerdere basisscholen en middelbare scholen liggen op korte afstand, en ook de Internationale School van Amsterdam is binnen enkele minuten bereikbaar. Dit maakt de locatie bijzonder aantrekkelijk voor zowel gezinnen als internationale bewoners.

Voor de dagelijkse boodschappen kunt u terecht in de winkelcentra Waardhuizen en Groenhof, terwijl het uitgebreide Stadshart Amstelveen in de buurt volop winkel-, horeca- en cultuurmogelijkheden biedt. Natuurliefhebbers kunnen genieten van de nabijgelegen Middelpolder en de Amstel, waar prachtige wandel-, fiets- en hardlooproutes liggen.

De bereikbaarheid is uitstekend. Met de auto zit u in enkele minuten op de A9, waardoor steden als Amsterdam, Utrecht en Haarlem eenvoudig te bereiken zijn. Ook Schiphol is goed bereikbaar. Het openbaar vervoer is eveneens goed geregeld: tram 25 en bus 348 brengen u rechtstreeks naar Amsterdam, en diverse buslijnen bieden een snelle verbinding naar onder meer Schiphol en het Stadshart Amstelveen.

Interesse in deze woning?

Turfschip 16
1186 XL Amstelveen
Vraagprijs € 725.000 k.k.

Kenmerken

Overdracht

Aanvaarding: In overleg
Vraagprijs: € 725.000 kosten koper

Vraagprijs: per m² € 5.179

Status: Beschikbaar

Bouw

Soort woonhuis: Eengezinswoning, tussenwoning (drive-in woning)
Soort bouw: Bestaande bouw
Bouwjaar: 1980

Specifiek: Gedeeltelijk gestoffeerd
Soort dak: Samengesteld dak bedekt met bitumineuze dakbedekking

Oppervlakte & inhoud

Wonen: 140 m²
Gebouwgebonden buitenruimte: 31 m²
Perceel: 122 m²
Inhoud: 482 m³

Indeling

Aantal kamers: 6 kamers (5 slaapkamers)
Aantal badkamers: 2 badkamers en 2 aparte toiletten
Badkamervoorzieningen: 2 inloopdouches, toilet, 2 wastafels, en ligbad

Aantal woonlagen: 3 woonlagen
Voorzieningen: Dakraam en TV kabel

Energie

Energielabel: B

Isolatie: Dakisolatie, dubbel glas en muurisolatie
Verwarming: Cv-ketel
Warm water: Cv-ketel
Cv-ketel: Nefit Topline Hr C25/CW4 (gas gestookt combiketel uit 2012, eigendom)

Kadastrale gegevens

Eigendomssituatie: Volle eigendom

Buitenruimte

Ligging: Aan rustige weg, beschutte ligging, in woonwijk en vrij uitzicht
Tuin: Achtertuin en voortuin
Achtertuin: 40 m² (7,93 meter diep en 5,08 meter breed)
Ligging tuin: Gelegen op het noordwesten
Balkon/dakterras: Balkon aanwezig

Parkeergelegenheid

Soort: Op eigen terrein en soortgelijke plekken

Interesse in deze woning?

Turfschip 16
1186 XL Amstelveen
Vraagprijs € 725.000 k.k.